Modernisiertes Stadthaus mit großem Nebengebäude in Coburger Innenstadtlage
Beschreibung:
Zurück zu ÜbersichtIn zentraler Coburger Stadtlage befindet sich dieses großzügig geschnittene Stadthaus mit Nebengebäude und Hoffläche. Es wurde 1934 erbaut und seit ca. 2000 umfangreich renoviert, so dass es sich heute in gutem Gesamtzustand präsentiert.
Auf insgesamt rund 250 m² Fläche, verteilt auf drei Ebenen, bietet die Immobilie ideale Voraussetzungen für Familien, Mehrgenerationenwohnen oder die Kombination aus Wohnen und Arbeiten. Auch eine rein gewerbliche Nutzung, z.B. für Praxis oder Büroräume wäre denkbar (vorherige behördliche Genehmigung erforderlich). Ergänzt wird das vollunterkellerte Haus durch ein großes, separates Nebengebäude, das früher als Werkstatt, danach als große Garage genutzt wurde.
Im Erdgeschoss stehen drei gut geschnittene, Räume zur Verfügung, die sich flexibel als Wohn-, Ess- oder Arbeitsbereich nutzen lassen. Hinzu kommen eine große Küche, ein Gäste-WC sowie ein Abstellraum.
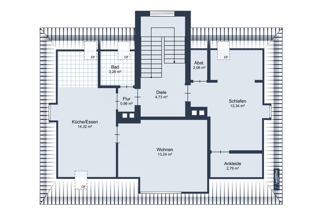
Im 1. Obergeschoss befinden sich drei Schlafzimmer, darunter ein schöner Elternbereich mit separatem Ankleidezimmer sowie ein großes Badezimmer mit begehbarer Dusche und Badewanne.
Im Dachgeschoss befinden sich zwei weitere Zimmer mit zusätzlicher Küche und einem Bad. Diese Ebene kann daher auch als separater Bereich z.B. für Gäste, erwachsene Kinder, Homeoffice oder vieles mehr genutzt werden.
Der Außenbereich ist eher durch die frühere gewerbliche Nutzung geprägt. Neben einer geschotterten Hoffläche mit Platz für mehrere Fahrzeuge vor der Halle gibt es noch einen großen gepflasterten Bereich hinter dem Haupthaus. Ein kleines Highlight zum Verweilen findet sich aber doch noch: Hinter der Halle gibt es noch einen kleinen Grundstücksteil, der bis an den Stadtfluß Itz heranreicht. Momentan noch verwildert und wenig einladend, könnte hier Ihr ganz privater Rückzugsort mitten in der Stadt entstehen.
Details:
- Baujahr
- 1934
- Wohnfläche, ca.
- 247 m²
- Grundstück, ca.
- 631 m²
- Stellplätze
- 4 Freiplätze
- Stellplätze
- 4 Garagen
- Käufer-/Mieterprovision
- 3,57% vom Kaufpreis incl. 19,00% MwSt.
- Kaufpreis
- 595.000,00 €
- Küche
- Einbauküche
- Bad
- Wanne, Dusche und Wanne, Fenster
- Anzahl Badezimmer
- 2
- Gäste WC
- Ja
- Boden
- Parkett, Fliesen
- Kabel Sat TV
- Ja
- Heizungsart
- Gasheizung
Lage:
Die Immobilie befindet sich am östlichen Innenstadtrand von Coburg in verkehrsgünstiger Lage, nur etwa 1 km vom historischen Marktplatz entfernt. Eine Stadtbushaltestelle ist in unmittelbarer Nähe vorhanden und sorgt für eine gute Anbindung an die Innenstadt sowie weitere Stadtteile.
Einkaufsmöglichkeiten für den täglichen Bedarf sind im nahen Umfeld vielfältig vorhanden. Auch Familien profitieren von der guten Infrastruktur: Eine Grund- und Hauptschule sind fußläufig in etwa 5 Minuten erreichbar, ein Kindergarten in ca. 10 Minuten und weiterführende Schulen in rund 15 Minuten.
Coburg selbst überzeugt mit einer hohen Lebensqualität und einer sehr guten Infrastruktur. Die Stadt bietet eine attraktive historische Altstadt, ein breites kulturelles Angebot, vielfältige Einkaufsmöglichkeiten, Restaurants sowie ein gutes medizinisches und schulisches Versorgungsangebot. Über die B4 und die nahegelegene A73 besteht eine sehr gute Verkehrsanbindung in Richtung Bamberg, Lichtenfels, Suhl und Nürnberg. Der Coburger Bahnhof mit ICE-Anschluss unterstreicht zudem die auch überregionale gute Erreichbarkeit des Standortes.
Beschreibung:
- 7,5 Zimmer auf ca. 247 m² Wohnfläche
- 2 Bäder und ein Gäste-WC
- 2 Küchen
- Nebengebäude mit vielfältigen Nutzungsmöglichkeiten (zuletzt Werkstatt und Abstellplatz für mindestens 4 Fahrzeuge)
- Große Hoffläche mit Platz für mindestens 4 weitere Fahrzeuge
- Das Haus ist voll unterkellert
Technische Details
- Baujahr 1934
- guter Zustand
- Elektrik komplett 3-adrig mit Kippsicherungen und FI-Schaltern
2017: komplette Dachsanierung mit 120 mm Aufdachdämmung
2017: Dachfenster komplett erneuert
2018: Türen und Fenster erneuert, 7-Kammer-Profil mit 3-fach-Verglasung
2022: neue Viessmann-Gasheizung als Gasbrennwertgerät
2024 Renovierung des Hauptbadezimmer im 1. OG
2024: Fernwärmeversorgung bis ins Haus legen lassen
2024: Treppengeländer neu gestrichen, Wände im Haus gestrichen
2024: Halle außen neu verputzt und gestrichen, neue Dachrinnen und Fallrohre
2025: Kanalprüfung durchgeführt, Kanal saniert
Energieausweis:
- Art:
- Bedarfsausweis
- Gültig bis:
- 06.08.2033
- Endenergieverbrauch:
- 136 kWh/(m²a)
- Baujahr lt. Energieausweis
- 2022
- Wesentlicher Energieträger
- Gas
- Klasse
- E

Rechtshinweis:
Haftungsausschluss: Objektbezogene Angaben beruhen auf Informationen des Verkäufers. Trotz regelmäßiger Prüfung von Daten, Bildern und Informationen übernehmen wir keine Haftung für die Richtigkeit der Angaben oder die Verfügbarkeit des Angebotes. Es gelten unsere Allgemeinen Geschäftsbedingungen (AGB).
Ihr direkter Ansprechpartner:
Name und Anschrift:
Herr Marco Cestone
Herrngasse 6
96450 Coburg
Kontaktdaten:
Sofortanfrage zum Angebot:
Ich interessiere mich für das Angebot, bitte nehmen Sie Kontakt mit mir auf.