Modernes Einfamilienhaus (Neubau-Erstbezug) auf schönem Grundstück in Coburg-Süd, sofort verfügbar!
Beschreibung:
Zurück zu ÜbersichtIn angenehmer Wohnlage von Coburg-Creidlitz präsentiert sich dieses neu errichtete Wohnhaus als attraktives Erstbezugsobjekt für Anspruchsvolle. Das energieeffiziente Wohnhaus mit einem Energiebedarf von nur 12,7 kWh/(m²a) überzeugt nicht nur durch seine moderne Architektur, sondern auch durch eine zukunftsweisende Haustechnik, stilvolle Ausstattungsdetails und eine große Südwest-Terrasse mit ca. 60 m² Fläche.
Die Wohn- und Schlafräume sind mit einem hellen Eiche-Vinylboden bzw. Laminat ausgestattet und werden durch eine Fußbodenheizung angenehm temperiert. Eine zentrale Wohnraumlüftung, elektrische Rollläden sowie eine 3-fach-Verglasung bieten zeitgemäßen Komfort. Für effiziente Wärme sorgt eine moderne Split-Wärmepumpe von Ochsner.
Besonders hervorzuheben ist die hochwertige Photovoltaikanlage mit 13,8 kWp, 10 kWh Speicher und Notlaufbetrieb – für mehr Unabhängigkeit und Nachhaltigkeit. Die Außenanlage wurde aufwendig gestaltet: Der rückseitige Gartenbereich ist durch eine Terrassierung mit L-Steinen und Palisaden strukturiert, sodass großzügige, nutzbare Flächen in Hanglage entstanden sind.
Im Erdgeschoss empfängt ein großzügiger Wohn- und Essbereich mit offenem Küchenkonzept und direktem Zugang zur ca. 60 m² großen Terrasse. Große Fensterflächen sorgen für viel Tageslicht und ein angenehmes Wohngefühl. Ein separates Gäste-WC sowie ein Hauswirtschaftsraum ergänzen das Raumangebot auf dieser Ebene sinnvoll.
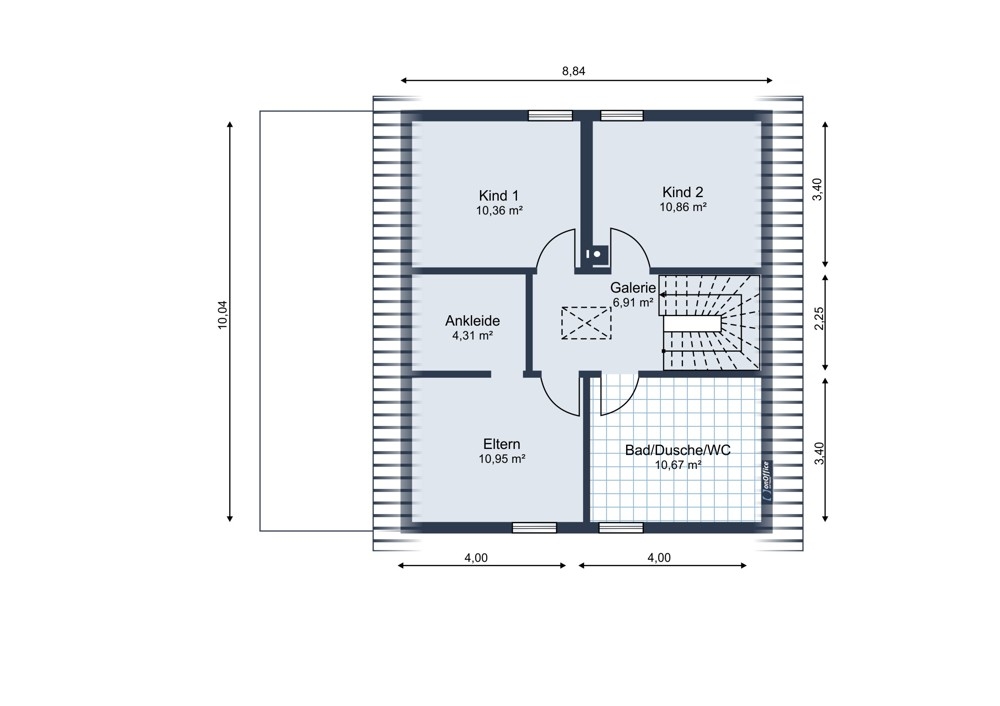
Das Dachgeschoss bietet insgesamt drei Schlafzimmer, darunter ein großzügiges Elternschlafzimmer mit integrierter Ankleide. Das helle, modern gestaltete Tageslichtbad ist mit Badewanne und einer bodengleichen, begehbaren Dusche ausgestattet – eine stilvolle Wohlfühloase für die ganze Familie.
Für Fahrzeuge steht ein großer Doppelcarport und weitere Parkmöglichkeiten auf der geschotterten Hoffläche zur Verfügungdirekt am Haus zur Verfügung.
Details:
- Baujahr
- 2025
- Wohnfläche, ca.
- 138 m²
- Grundstück, ca.
- 1.092 m²
- Stellplätze
- 2 Carports, 50 € (Miete)
- Stellplätze
- 2 Freiplätze
- Kaltmiete
- 1.600,00 €
- Küche
- Einbauküche
- Bad
- Dusche und Wanne, Fenster
- Anzahl Badezimmer
- 1
- Gäste WC
- Ja
- Boden
- Laminat, Fliesen, Vinyl
- Balkon/Terrasse
- Ja
- Kamin
- Ja
- Wasch/Trockenraum
- Ja
- Heizungsart
- Wärmepumpe
- Kaution
- 3.200,00 €
- Nebenkosten
- 120,00 €
- Gesamtmiete
- 1.820,00 €
Lage:
Das Objekt befindet sich in ruhiger Wohnlage im südlichen Coburger Stadtteil Creidlitz. Die gewachsene Umgebung ist geprägt von Einfamilienhäusern, Gärten und kurzen Wegen ins Grüne. Trotz der ruhigen Lage ist die Anbindung an die Innenstadt sowie das überregionale Verkehrsnetz sehr gut.
Creidlitz verfügt über eine eigene Grundschule, Kindergarten, Bäcker, Nahversorger sowie eine Anbindung an den städtischen Busverkehr und die Bahnlinie Coburg–Lichtenfels. Der Coburger ICE-Bahnhof ist in ca. 10 Minuten erreichbar und ermöglicht direkte Verbindungen u. a. nach Nürnberg, Erfurt oder Berlin.
Die Stadt Coburg selbst bietet eine ausgezeichnete Infrastruktur mit sämtlichen Schularten, Hochschulen, Klinikum, Theater, Museen sowie einer lebendigen Innenstadt mit Einkaufsmöglichkeiten, Cafés und Restaurants. Als ehemalige Residenzstadt mit hohem Freizeitwert verbindet Coburg historische Bausubstanz mit moderner Lebensqualität.
Das Grundstück liegt in leichter Hanglage mit Südwest-Ausrichtung. Der Gartenbereich hinter dem Haus wurde aufwendig terrassiert, sodass ebene, nutzbare Flächen entstanden sind – ideal für Sitzbereiche, Spiel- oder Pflanzzonen. Zur Stabilisierung wurden massive L-Steine und Palisaden gesetzt, wodurch das Gelände zugleich pflegeleicht und gestalterisch ansprechend wirkt.
Beschreibung:
- Neubau-Erstbezug 2025
- Energiebedarf lt. Energieausweis: 12,7 kWh/(m²a)
- 3-fach-Isolierverglasung
- elektrische Rollläden
- Wärmepumpe
- Schiedel-Kaminofen (ca. 7 kW)
- Fußbodenheizung in allen Wohnräumen
- Zentrale Wohnraumlüftung
- Photovoltaikanlage: 13,8 kWp, Speicher 10 kWh, Notlaufbetrieb
- Designboden (Vinyl, Eiche hell) in den Wohnräumen
- Laminat in den Schlafräumen
- Großzügige Terrasse (ca. 50 m²)
- Modernes Bad mit Fenster, Badewanne und bodengleicher Dusche
- Elternschlafzimmer mit Ankleide
- Doppelcarport + weitere Parkmöglichkeiten
- Rückwärtiger Gartenbereich terrassiert – ideal nutzbar trotz Hanglage
Energieausweis:
- Art:
- Bedarfsausweis
- Gültig bis:
- 16.04.2035
- Endenergieverbrauch:
- 12,7 kWh/(m²a)
- Baujahr lt. Energieausweis
- 2025
- Wesentlicher Energieträger
- Luft/wasser Wärmepumpe
- Klasse
- A+

Rechtshinweis:
Haftungsausschluss: Objektbezogene Angaben beruhen auf Informationen des Verkäufers. Trotz regelmäßiger Prüfung von Daten, Bildern und Informationen übernehmen wir keine Haftung für die Richtigkeit der Angaben oder die Verfügbarkeit des Angebotes. Es gelten unsere Allgemeinen Geschäftsbedingungen (AGB).
Ihr direkter Ansprechpartner:
Name und Anschrift:
Herr Philipp Teuber
Herrngasse 6
96450 Coburg
Kontaktdaten:
- 09561 2335-13
- 09561 233 515
- pt@langeimmobilien.de
Sofortanfrage zum Angebot:
Ich interessiere mich für das Angebot, bitte nehmen Sie Kontakt mit mir auf.