Aufwendig saniertes Wohnhaus mit viel Platz und schönem Fernblick westlich von Coburg
Beschreibung:
Zurück zu ÜbersichtIn ruhiger Wohnlage von Weitramsdorf befindet sich dieses umfangreich modernisierte Wohnhaus mit Einliegerwohnung und schönem Fernblick. Es bietet viel Platz für eine größere Familie oder für Wohnen und Arbeiten unter einem Dach.
Die Hauptwohnung erstreckt sich über drei Ebenen: Im Erdgeschoss stehen 5 Zimmer, Küche, Diele und Bad zur Verfügung. Das Dachgeschoss wurde 2020 aufwendig zu zwei großzügigen Studiozimmern mit einem schönen Bad ausgebaut und 2025 um eine moderne Küche ergänzt. Im Gartengeschoss befindet sich ein weiteres vollwertiges Zimmer mit eigenem Bad – ideal für Gäste, ein älteres Kind oder ein ruhiges Homeoffice. Die Zwei-Zimmer-Einliegerwohnung mit Küche, Bad und Balkon verfügt über einen separaten Zugang und eröffnet zusätzliche Nutzungsmöglichkeiten.
Zufahrt und Außenanlagen wurden in den letzten Jahren aufwendig erneuert, so dass sich das Haus heute rundum in einem sehr guten Zustand präsentiert. Zum Parken steht eine voll unterkellerte Doppelgarage mit davorliegenden Stellplätzen zur Verfügung.
Details:
- Baujahr
- 1980
- Wohnfläche, ca.
- 318 m²
- Nutzfläche, ca.
- 40 m²
- Grundstück, ca.
- 1.049 m²
- Stellplätze
- 2 Garagen
- Käufer-/Mieterprovision
- 3,57 % vom Kaufpreis inkl. 19 % MwSt.
- Kaufpreis
- 669.990,00 €
- Küche
- Einbauküche
- Bad
- Dusche, Dusche und Wanne, Fenster
- Anzahl Badezimmer
- 4
- Gäste WC
- Ja
- Boden
- Laminat, Fliesen, Vinyl
- Balkon/Terrasse
- Ja
- Kamin
- Ja
- Heizungsart
- Zentralheizung
Lage:
Das Haus befindet sich in Weitramsdorf, einer beliebten Gemeinde westlich von Coburg. Der Ort bietet eine ausgewogene Mischung aus ruhiger Wohnlage und einer guten Infrastruktur: Einkaufsmöglichkeiten, Kindergarten, Grundschule sowie Ärzte sind gut erreichbar und sorgen für kurze Wege im täglichen Leben. Das Haus selbst befindet sich in ruhiger, zentrumsnaher Lage, verfügt aber dennoch über einen schönen Fernblick.
Weiterführende Schulen, der ICE-Bahnhof, ein umfangreiches kulturelles und gastronomisches Anbebot und vielfältige Einkaufsmöglichkeiten befinden sich im rund 7 km entfernten Coburg. Mit dem Auto ist die Stadt in wenigen Minuten erreichbar. Im Ort selbst gibt es eine Frankenbus-Haltestelle sowie einen Schulbus, sodass auch jüngere Kinder und Schüler gut angebunden sind. Über die B303 und die A73 bestehen zudem unkomplizierte Straßenverbindungen in Richtung Schweinfurt und Lichtenfels/Kronach oder nach Bamberg/Nürnberg und Erfurt.
Beschreibung:
- Baujahr 1980
- Nach umfangreichen Sanierungs- und Renovierungsmaßnahmen seit 2010 befindet sich das Haus heute in sehr gutem Zustand
Modernisierungen
2010 Renovierung der Innenräume
2010 Badsanierung Einliegerwohnung
2010 neue Bodenbeläge im EG (Fliesen und Laminat)
2011 neue Doppel-Isolierglasfenster
2012 Außenanlagen: neue Pflasterung, Zuwege, Begradigung des Gartens
2016 neue Ölbrennwertheizung
2016 neues Gästebad im Gartengeschoss
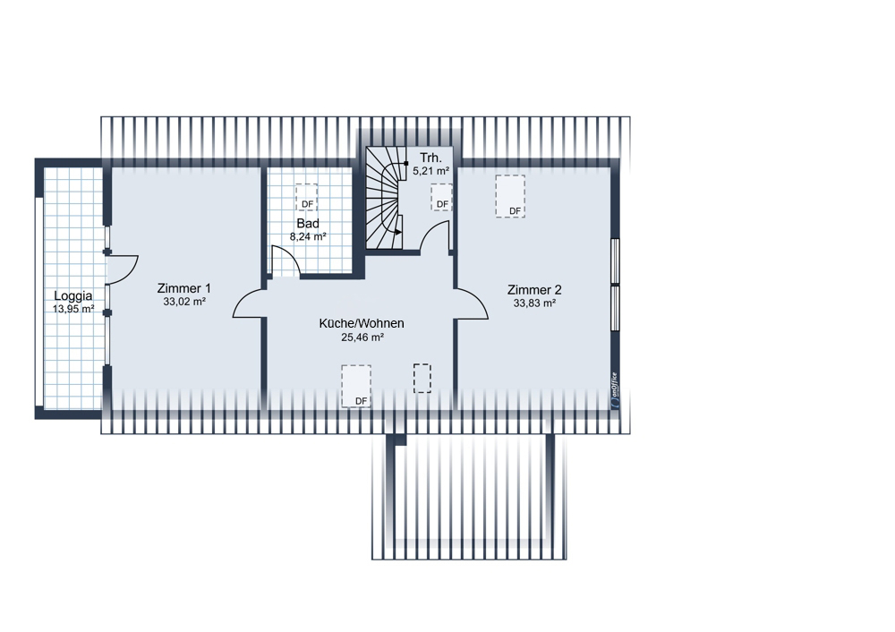
2020 aufwendiger Ausbau des Dachgeschosses zu zwei großen Studiozimmern
2020 neues Bad im Dachgeschoss
2025 neue Küche im Dachgeschoss
Aufteilung Hauptwohnung
- Insgesamt 8 Zimmer auf ca. 268 m² Wohnfläche
- Erdgeschoss: 5 Zimmer, Küche, Diele, Bad
- Dachgeschoss: 2 große, neu ausgebaute Studiozimmer; moderner Bereich für Wohnen/Kochen
- Gartengeschoss (UG): weiteres Zimmer (z. B. Gäste, Kind, Büro) sowie Bad
Aufteilung Einliegerwohnung (Gartengeschoss)
- 2 Zimmer, Küche, Diele, Bad, Balkon
- Wohnfläche ca. 50 m²
- Die Einliegerwohnung ist aktuell vermietet. Mieteinnahme 6.240,00 EUR p.a. (Nettokaltmiete)
Ausstattung & Besonderheiten:
- Insgesamt 3 Einbauküchen
- 4 Bäder
- Doppelgarage + zwei davorliegende Kfz-Stellplätze
Energieausweis:
- Art:
- Bedarfsausweis
- Gültig bis:
- 01.12.2035
- Endenergieverbrauch:
- 125,6 kWh/(m²a)
- Baujahr lt. Energieausweis
- 2016
- Wesentlicher Energieträger
- Öl
- Klasse
- D

Rechtshinweis:
Haftungsausschluss: Objektbezogene Angaben beruhen auf Informationen des Verkäufers. Trotz regelmäßiger Prüfung von Daten, Bildern und Informationen übernehmen wir keine Haftung für die Richtigkeit der Angaben oder die Verfügbarkeit des Angebotes. Es gelten unsere Allgemeinen Geschäftsbedingungen (AGB).
Ihr direkter Ansprechpartner:
Name und Anschrift:
Herr Marco Cestone
Herrngasse 6
96450 Coburg
Kontaktdaten:
Sofortanfrage zum Angebot:
Ich interessiere mich für das Angebot, bitte nehmen Sie Kontakt mit mir auf.