Charmantes Einfamilienhaus mit Kachelofen, Garten und Garage in ruhiger Lage von Coburg-Scheuerfeld
Beschreibung:
Zurück zu ÜbersichtDas gepflegte Einfamilienhaus aus dem Jahr 1983 befindet sich in ruhiger und bevorzugter Wohnlage von Coburg-Scheuerfeld. Das Haus überzeugt durch seine durchdachte Raumaufteilung, den gemütlichen Wohnkomfort und das schön eingewachsene Grundstück mit Garten.
Im Erdgeschoss erwartet Sie ein großzügiger Wohn- und Essbereich, der durch den gemütlichen Kachelofen eine besondere Wohlfühlatmosphäre schafft. Von hier aus haben Sie direkten Zugang zur Terrasse und in den liebevoll angelegten Garten. Die Einbauküche ist im Mietumfang enthalten und bietet alle notwendigen Geräte sowie ausreichend Stauraum. Ein Gäste-WC komplettiert das Erdgeschoss.
Im Obergeschoss befinden sich ein großzügiges Elternschlafzimmer mit angrenzender Ankleide, ein Kinderzimmer sowie das helle Badezimmer mit Badewanne und Dusche.
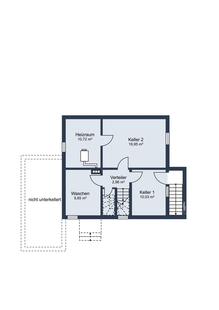
Das Haus ist voll unterkellert und bietet somit viel Platz für Abstell- und Hobbyräume. Beheizt wird die Immobilie über eine Gas-Zentralheizung.
Zur Immobilie gehören zudem eine Einzelgarage sowie zusätzliche Stellplätze vor dem Haus. Das schön eingewachsene Grundstück bietet Privatsphäre und lädt zum Entspannen im Grünen ein.
Details:
- Baujahr
- 1983
- Wohnfläche, ca.
- 100 m²
- Grundstück, ca.
- 750 m²
- Stellplätze
- 2 Freiplätze
- Stellplätze
- 1 Garage
- Kaltmiete
- 1.190,00 €
- Küche
- Einbauküche
- Bad
- Dusche und Wanne, Fenster
- Anzahl Badezimmer
- 1
- Gäste WC
- Ja
- Boden
- Laminat, Fliesen
- Balkon/Terrasse
- Ja
- Heizungsart
- Zentralheizung
- Kaution
- 2.400,00 €
- Nebenkosten
- 100,00 €
- Gesamtmiete
- 1.290,00 €
Lage:
Das Haus befindet sich in äußerst beliebter und ruhiger Lage im Coburger Stadtteil Scheuerfeld. Vor Ort findet man eine sehr gute Infrastruktur. U.a. mit Stadtbushaltestelle, Kindergarten, Grundschule, vielfältigen Freizeitangeboten, Ärzte, Apotheke u.v.m.
Das Stadtzentrum Coburgs lässt sich mit dem Pkw oder dem Stadtbus in wenigen Minuten erreichen und auch die nächsten Anschlussstellen für die Fernstraßen B4, B303 und Bundesautobahn A73 sind nur wenige Fahrminuten entfernt.
Beschreibung:
- Baujahr: 1983
- Gas-Zentralheizung
- Badezimmer mit Badewanne und Dusche
- Gäste-WC im Erdgeschoss
- Einbauküche inklusive
- Kachelofen im Wohnbereich
- Unterkellert
- Einzelgarage und Stellplätze vor dem Haus
- Schön eingewachsenes Grundstück mit Garten
Energieausweis:
- Art:
- Bedarfsausweis
- Gültig bis:
- 26.09.2035
- Endenergieverbrauch:
- 194,1 kWh/(m²a)
- Baujahr lt. Energieausweis
- 2005
- Wesentlicher Energieträger
- Gas
- Klasse
- F

Rechtshinweis:
Haftungsausschluss: Objektbezogene Angaben beruhen auf Informationen des Verkäufers. Trotz regelmäßiger Prüfung von Daten, Bildern und Informationen übernehmen wir keine Haftung für die Richtigkeit der Angaben oder die Verfügbarkeit des Angebotes. Es gelten unsere Allgemeinen Geschäftsbedingungen (AGB).
Ihr direkter Ansprechpartner:
Name und Anschrift:
Herr Philipp Teuber
Herrngasse 6
96450 Coburg
Kontaktdaten:
- 09561 2335-13
- 09561 233 515
- pt@langeimmobilien.de
Sofortanfrage zum Angebot:
Ich interessiere mich für das Angebot, bitte nehmen Sie Kontakt mit mir auf.